🌥️
Banská Bystrica,
5
°C
Oblačno
Žilinak
Trenčínak
Prešovak
Nitrak
Bratislavak
Trnavak
Košicak
Bystricak
25. apríl, Marek
Prihlásenie
Registrácia
Dnes
Správy
Krimi
Príbehy
Doprava
Fotogaléria
Viac
Dopravný servis
Program kina
Pohotovosť lekární
Počasie
Podujatia
Kvízy
Prihlásenie
Registrácia
×
📢 Dnes
📰 Správy
🚔 Krimi
📖️ Príbehy
🚦 Doprava
🎭 Podujatia
🖼️ Fotogaléria
❓ Kvízy
🎯 Slovo dňa
🎬 Program kina
☀️ Počasie
📂 Viac
🚦 Dopravný servis
🏥 Pohotovosť lekární
Meniny
Fotogaléria
6. november 2025 o 10:45
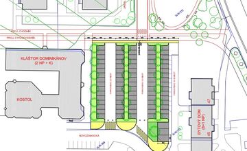
FOTO: Návrhy nových parkovacích miest
Súvisiaca téma
FOTO: Vzniknú vo Zvolene nové parkovacie miesta? Návrhy sú hotové, domáci pridávajú postrehy a diskutujú o umiestnení
Zdroj: FB/Zvolen Západ - Fórum, Igor Š.
Správy emailom
Denný prehľad vždy o 17:00 hod.
Facebook kanál
Dôležité správy na Messenger
WhatsApp kanál
Rýchle správy priamo v mobile.
Nahlásiť chybu
Našli ste chybu v článku?
Zdieľať
Facebook
Zdieľať v profile alebo skupine.
WhatsApp
Poslať do správy jedným klikom.
Email
Odoslať odkaz emailom.
Skopírovať odkaz
Uložiť URL adresu do schránky.
Poslať tip
Anonymne
Formulár bez mena a kontaktu.
WhatsApp
Rýchly kontakt cez mobil.
Emailom
Priamo z vašej aplikácie.
Načítavam
Najnovšie správy
Banská Bystrica
Zvolen